Проект 6
Мы вручную создаем уникальные дома с использованием канадских технологий в нескольких стилях. Благодаря нашему гибкому предложению, мы можем настроить каждый дизайн в соответствии с вашими индивидуальными потребностями, независимо от того, хотите ли вы его увеличить или уменьшить. Наши проекты являются идеальной базой для создания чего-то совершенно уникального. Вместе мы можем превратить ваши мечты об идеальном доме в реальность! Используя высококачественные материалы, мы не только гарантируем долговечность, но и придаем вашему дому неповторимый шик и элегантность.
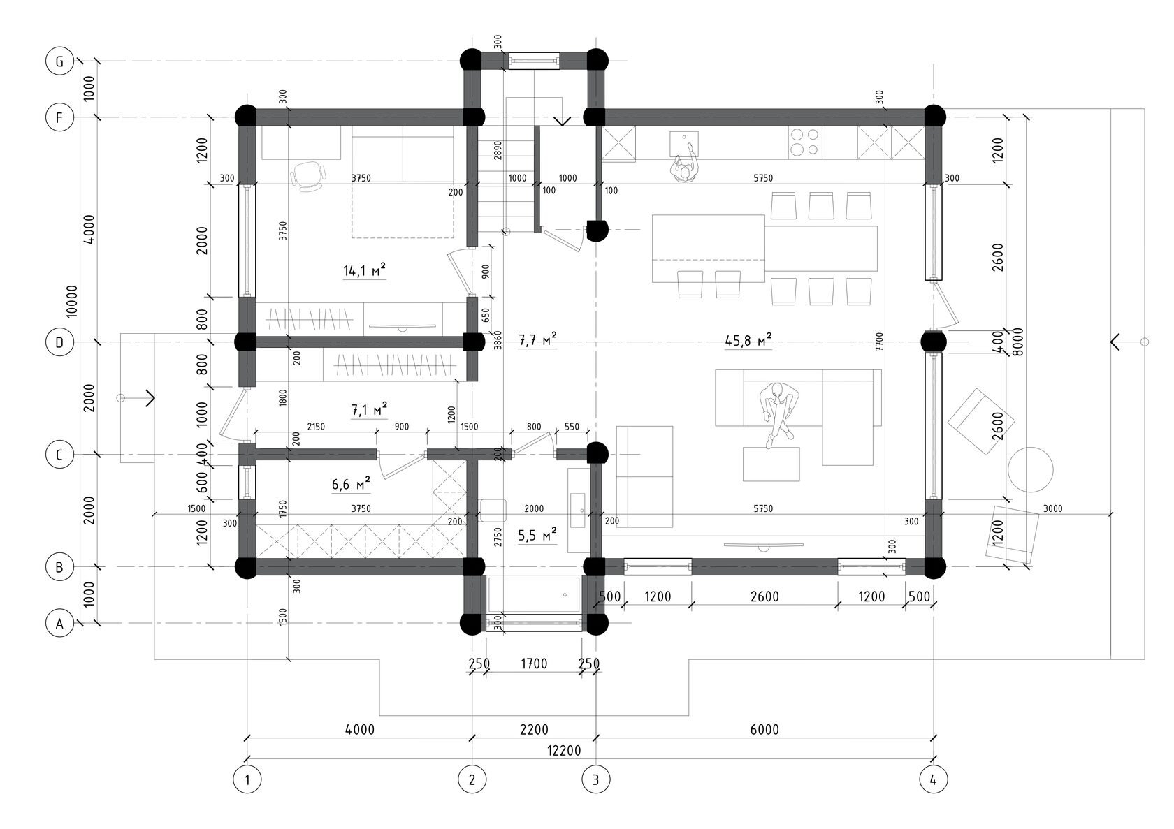
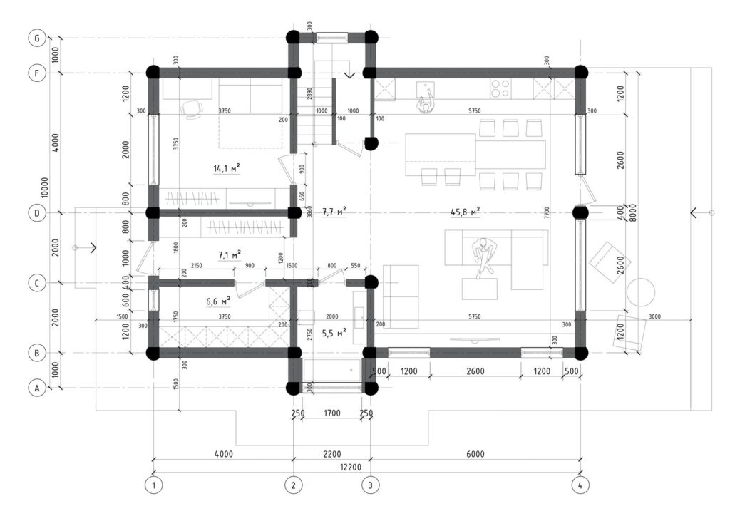
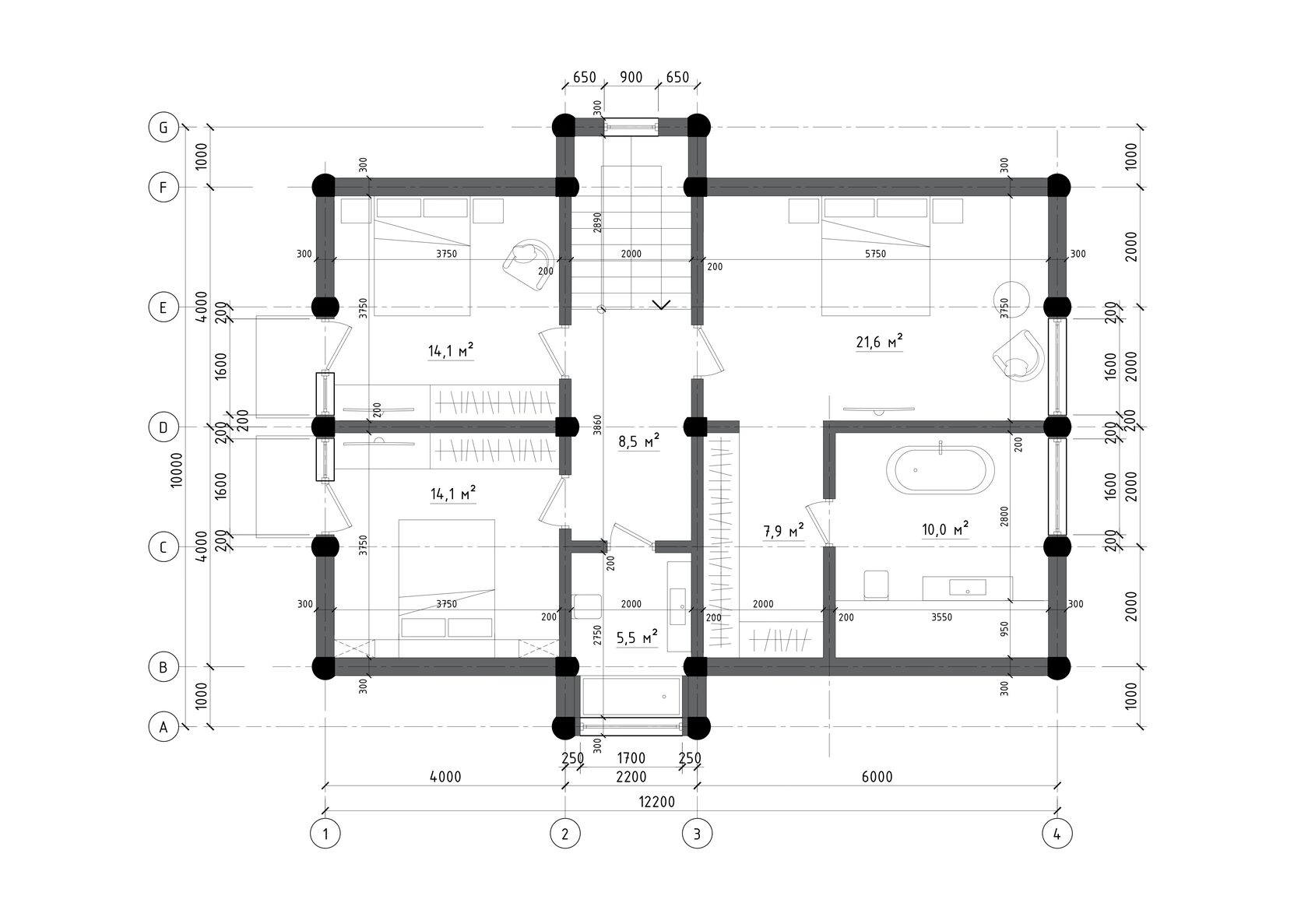
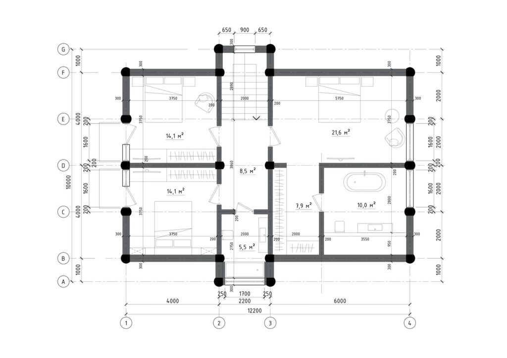
Площадь дома:
150 m2
Высота дома:
7 m
Угол крыши:
43°
Количество комнат:
5
Количество спален:
4
Номер проекта:
06
Powierzchnia całkowita:
150 m2
Gabaryt:
10х7m
Liczba pięter:
2
Liczba pokoi:
5
Liczba sypialni:
4
Numer projektu:
06
КАЖДЫЙ ДЕРЕВЯННЫЙ ДОМ - ЭТО УНИКАЛЬНАЯ ИСТОРИЯ
Время строительства зависит от многих факторов, но может варьироваться от 3 до 12 месяцев, в зависимости от сложности, размера проекта и требований заказчика.
НАША КОМПАНИЯ ГОТОВА АДАПТИРОВАТЬСЯ К ВАШИМ ПОТРЕБНОСТЯМ И ОБЕСПЕЧИТЬ КОМПЛЕКСНОЕ ОБСЛУЖИВАНИЕ НА КАЖДОМ ЭТАПЕ СТРОИТЕЛЬСТВА
Цена за состояние застройки зависит от типа используемых отделочных материалов, таких как окна, двери, кровля и многие другие факторы. Поэтому к каждой оценке проекта мы подходим индивидуально.
К этой цене следует добавить:

Транспортировка на строительную площадку

Работа крана при сборке

Размещение монтажной бригады
Dowiedz się więcej FAQ
Budowa domu to proces, który zaczyna się od projektu. Nasza współpraca z klientem rozpoczyna się od dokładnego ustalenia potrzeb i preferencji. Razem tworzymy szczegółowe zadanie techniczne, w którym:
Określamy lokalizację domu na działce oraz definiujemy jego styl i rozmiar.
Ustalamy liczbę pięter, rodzaj i wysokość budynku.
Wspólnie decydujemy o układzie pomieszczeń, ilości pokoi, sypialni i łazienek.
Określamy podstawowe wymagania dotyczące rozwiązań konstrukcyjnych oraz materiałów używanych do budowy ścian, sufitów i innych elementów.
Po uzgodnieniach podpisujemy umowę, co otwiera drogę do rozpoczęcia prac projektowych.
«Koszty budowy domu składają się z wielu czynników i zależą od kilku kluczowych elementów, takich jak:
Użyte materiały budowlane.
Grubość bali i rodzaj fundamentu.
Powierzchnia domu, jego schemat konstrukcji nośnych oraz liczba kondygnacji.
Obecność lub brak piwnicy, parteru, poddasza, balkonów i tarasów.
Kształt i rodzaj materiału użytego do budowy dachu.
Każdy z tych czynników ma wpływ na koszt budowy domu. Ostateczna cena za metr kwadratowy będzie wynikiem kombinacji tych elementów i indywidualnych preferencji klienta.»
Zadaj pytanie
Ошибка: Контактная форма не найдена.